Understanding floor plans is an essential skill whether you’re designing a new home, planning a renovation, or simply trying to visualize how a space will work in real life. At first glance, floor plans can look technical or confusing, but once you know what to look for, they become a powerful tool for making better design decisions.
What Is a Floor Plan?
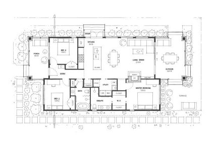
A floor plan is a scaled, top-down drawing of a space that shows the layout of rooms, walls, doors, windows, and key features. It represents how different areas connect and how people move through a space.
Floor plans are used by:
- Homeowners and renters
- Interior designers and architects
- Builders and contractors
- Real estate professionals
Today, digital floor plan creators make it easier than ever to view, edit, and understand floor plans without technical training.
Types of Floor Plans
2D Floor Plans
2D floor plans show a flat, overhead view of a space. They focus on structure, measurements, and layout.
Best for:
- Understanding room sizes
- Checking dimensions
- Planning layouts accurately
3D Floor Plans
3D floor plans add depth and perspective, making spaces easier to visualize.
Best for:
- Seeing how rooms feel in real life
- Understanding height, depth, and proportions
- Presentations and design previews
Many modern floor plan creators allow you to switch between 2D and 3D views instantly, helping bridge the gap between technical drawings and real-world spaces.
Key Elements of a Floor Plan

Understanding the main elements of a floor plan helps you read layouts more accurately and imagine how a space will function in real life. These components show how rooms are structured, connected, and used.
Walls, Doors, and Windows
Walls form the basic structure of a floor plan. They define room boundaries, separate private and shared areas, and influence how sound, light, and movement flow through a space. Thick or solid lines usually represent structural walls, while thinner lines may indicate partitions or non-load-bearing walls.
Doors are typically shown with curved swing arcs, which indicate the direction the door opens and how much space it requires. Paying attention to door swings is important when planning furniture placement and ensuring clear walkways.
Windows are represented by breaks or narrow lines within the walls. Their placement affects natural light, ventilation, and views. Understanding where windows are located helps you visualize how bright a room will feel and how air circulates throughout the space.
Together, walls, doors, and windows reveal how people move through a layout and how comfortable and functional the space will be.
Rooms and Spaces
Rooms in a floor plan are usually labeled according to their function, such as bedroom, kitchen, bathroom, or living area. These labels help clarify how each area is intended to be used and how different spaces relate to one another.
In open-plan layouts, fewer walls are shown, and multiple functions may share a single large space. While this can create a sense of openness and flexibility, it also makes it important to understand where one area ends and another begins. Floor plans often rely on furniture placement or subtle layout changes to define zones within open spaces.
Dimensions and Scale
Dimensions show the exact size of rooms, walls, and openings, allowing you to understand how much usable space is available. These measurements are essential when planning furniture, storage, and renovations.
Scale ensures that everything in the floor plan reflects real-world proportions. Without proper scale, it’s easy to misjudge room sizes or assume that furniture will fit when it won’t. Reading dimensions and understanding scale together helps you make realistic decisions and avoid costly design mistakes.
Common Floor Plan Symbols Explained
Floor plans use standard symbols to represent:
- Furniture and fixtures
- Stairs and built-ins
- Plumbing and kitchen elements
Most plans include a legend or key to explain these symbols. If symbols feel overwhelming, recreating a plan in a digital floor plan creator can make them easier to understand through visual context.
How to Read a Floor Plan Step by Step

- Start with the overall layout to understand the structure
- Identify each room and its purpose
- Review dimensions to judge space and proportions
- Follow movement paths between rooms
- Note window placement and door swings
Common Mistakes When Interpreting Floor Plans
- Ignoring scale and room proportions
- Underestimating how much space furniture requires
- Overlooking door swings and storage areas
- Assuming layouts will work without visual testing
Using a floor plan software like Planner 5D to place furniture and adjust layouts can help prevent these mistakes early in the design process.
Creating Your Own Floor Plan
Creating a floor plan is one of the best ways to truly understand how a space works. Compared to hand-drawn plans, digital tools offer:
- Accurate measurements
- Easy edits and adjustments
- Drag-and-drop furniture and fixtures
- Instant 2D and 3D visualization
A floor planner makes it possible for anyone to design and test ideas without professional experience.
Floor Plans for Different Use Cases
Floor plans are useful in many situations:
- Designing homes and apartments
- Planning office layouts
- Renovating or remodeling spaces
- Preparing real estate listings
Conclusion: Learn Floor Plans by Designing Them
Understanding floor plans doesn’t require technical expertise but requires practice and the right tools. By learning how to read layouts, interpret symbols, and visualize space, you can make more confident design decisions.
Creating your own floor plan using a digital floor plan creator is one of the most effective ways to build that understanding and turn ideas into clear, functional designs.